© 2026 Regimo St.Gallen

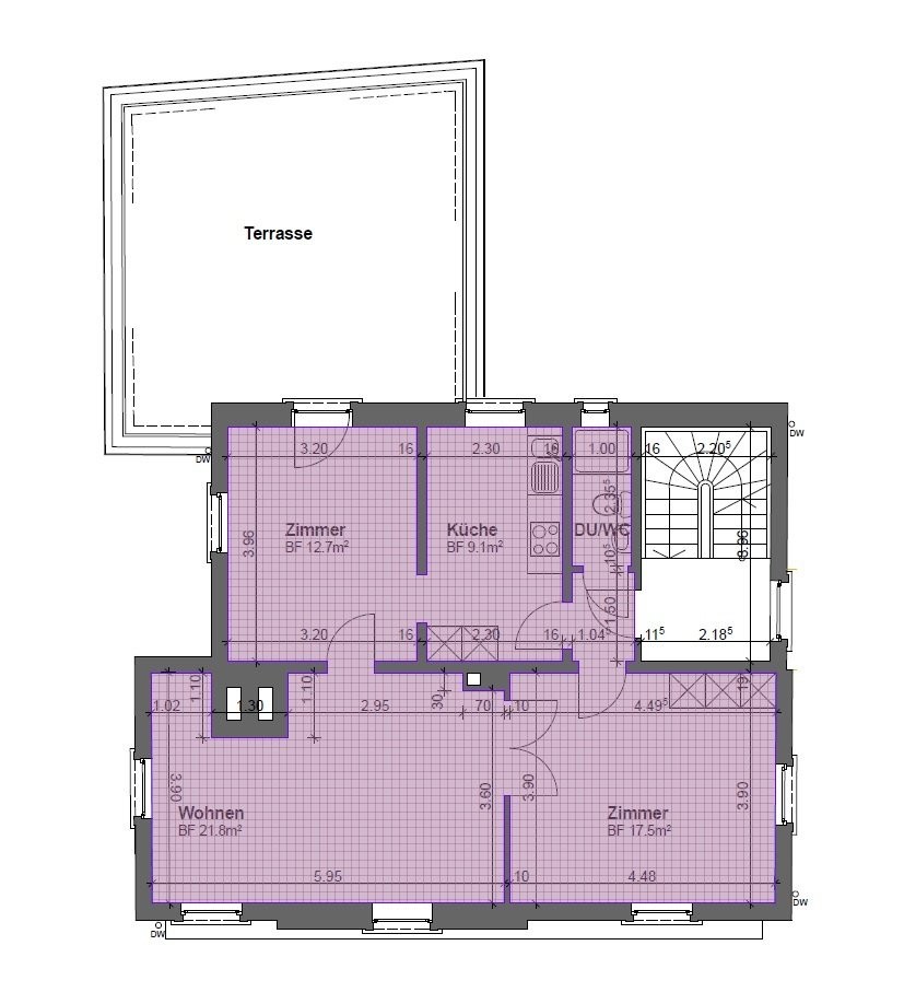
Charmante 3-Zimmerwohnung

Diese charmate Altbauwohnung befindet sich an sonniger, ruhiger Lage und nur ca. eine viertel Stunde oder drei Busstationen vom Hauptbahnhof entfernt.

Für Ihre Wohnqualität:
- Ganze Wohnung mit Kassetten- und Fischgratparkett
- Neuere Fenster mit Isolierverglasung
- Fassadensanierung im Jahre 2017
- Einfache Küche mit Geschirrspüler
- kleines Badezimmer mit Dusche
- grosseTerrasse mit herrlicher Aussicht und Abendsonne
- Keller- und Estrichabteil

Interessiert? Dann lohnt sich eine Besichtigung.
400 m
Öffentlicher Verkehr
2 km
Einkaufsmöglichkeit
500 m
Schule / Kindergarten
2.5 km
Stadtzentrum
aussicht Aussicht
balkon Balkon / Sitzplatz

Weitere Objekte von Regimo St.Gallen