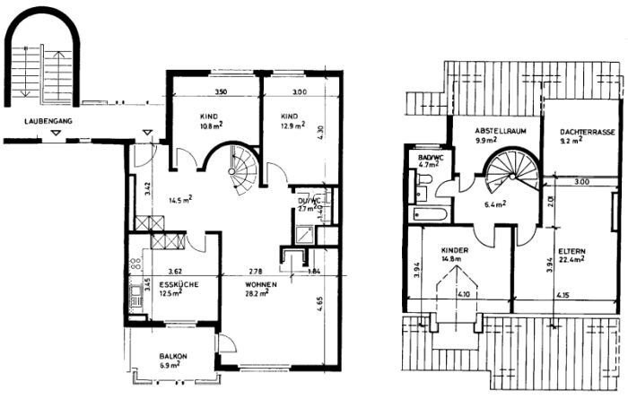
Möchten Sie zentrumsnah und trotzdem in einer Umgebung mit viel Grün leben? In dieser Maisonette-Wohnung fühlt sich die ganze Familie wohl. Ihre Kinder können sich auf den Spielplatz freuen. Angenehmen für Sie sind zudem die Nähe zum Kindergarten, Primarschule und der Oberstufe. Auch Einkaufsmöglichkeiten sind nah gelegen.
Für Ihre Wohnqualität: - Küche mit Glaskeramikherd, Geschirrspüler und Granitabdeckung - Nasszelle Bad und WC mit Waschmaschinenanschluss - separate Dusche, Lavabo und WC - Ganze Wohnung mit Platten- und Parkettböden - Abstellraum - Einbauschränke im Korridor - Zusätzlich auf Wunsch: Einstellplatz Tiefgarage, CHF 120.-/Monat oder E-Einstellplatz, CHF 150.-/Monat - kautionsfreies Wohnen