© 2026 Regimo St.Gallen

Ihr neues Zuhause

Ihr neues Zuhause befindet sich in einer gepflegten und ruhigen Siedlung, in der Sie sich wohl fühlen werden. Einkaufsmöglichkeiten und Anschlüsse an den öffentlichen Verkehr erreichen Sie bequem zu Fuss.

Für Ihre Wohnqualität:

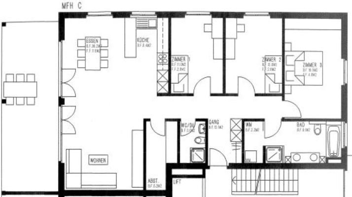
- Parkettböden in Wohn- und Schlafzimmern

- Küche mit Glaskeramik-Kochherd und Geschirrspüler

- Badezimmer mit Badewanne, Dusche, eigenem Waschturm (Waschmaschine/Tumbler) und Tageslicht

- separates WC mit Dusche

- Balkon vorhanden

- Lift vorhanden

- eigenes Kellerabteil

- Bei Bedarf kann ein Aussenabstellplatz für CHF 50.00/Mt. oder ein Einstellplatz in der Tiefgarage für CHF 120.00/Mt. dazugemietet werden.


Interessiert? Dann lohnt sich eine Besichtigung.


Die aufgeführten Fotos wiedergeben den Ausbaustandard der Wohnungen. Es ist möglich, dass einzelne Fotos nicht genau mit den jeweiligen Gegebenheiten und Grundrissen übereinstimmen.

300 m
Öffentlicher Verkehr
400 m
Einkaufsmöglichkeit
700 m
Schule / Kindergarten
eckdaten Lift
balkon Balkon / Sitzplatz

Weitere Objekte von Regimo St.Gallen